Contact Us
 

£885,000

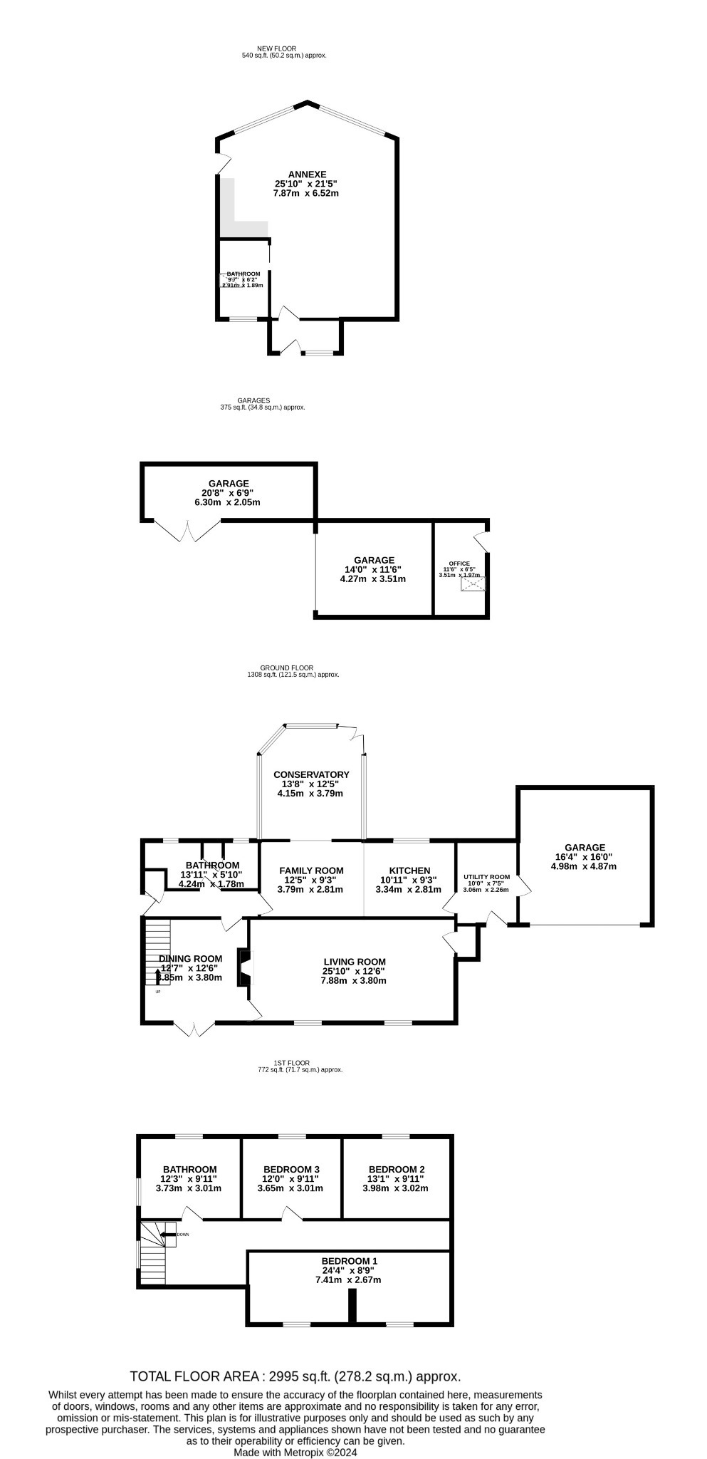
Description

Charming detached characterful cottage located in an idyllic location just outside the village of Upton-Upon-Severn. Well positioned in delightful wraparound cottage gardens. two sweeping driveways and Little Magnolia a detached Cedar Clad Lodge. currently utilised as an Air B&B. EPC – Pending

Viewing

Please contact us on 01242 230041 if you wish to arrange a viewing appointment for this property, or require further information.

Disclaimer

Kensington Lettings endeavour to maintain accurate depictions of properties in Virtual Tours, Floor Plans and descriptions, however, these are intended only as a guide and purchasers must satisfy themselves by personal inspection.
IE8 Alert! Cookie Alert!

To get the best possible experience using our website we recommend you upgrade to a modern web browser. More info